Einbau Labor Lehenmatt

Lehenmattstrasse 260, 4052 Basel
Planung und Ausführung: 2024–2025

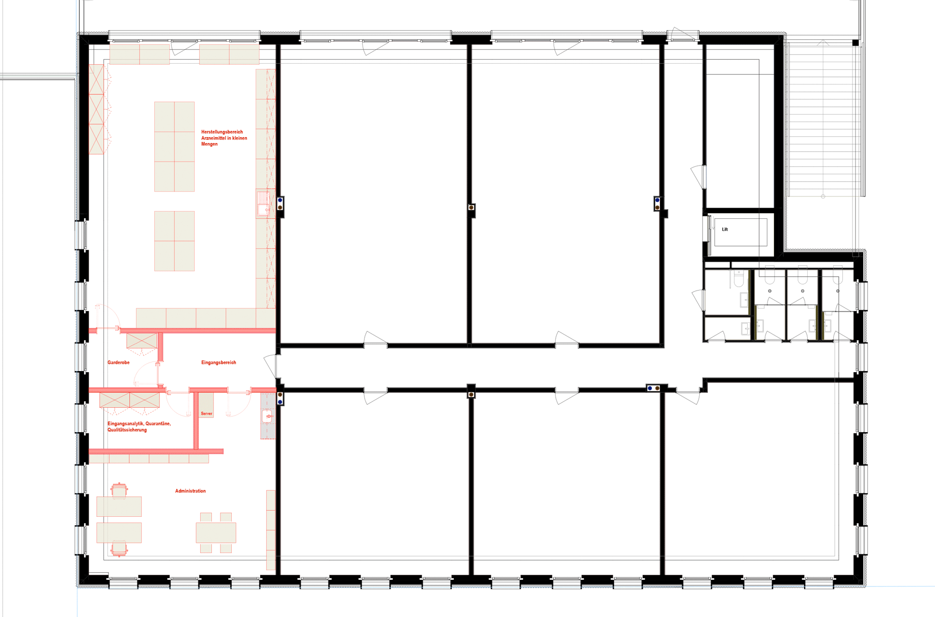
An der Lehenmattstrasse 260 in Basel wurde ein neuer MIGROS inkl. Bäckerei erstellt, welcher im Obergeschoss leere Räumlichkeiten für den Einbau von Büros und stille gewerbliche Nutzung anbietet.

Auf einer Fläche von rund 156m2 wird das neue Labor für die Apotheke Lehenmatt geplant und eingebaut. Dabei wurde insbesondere das Augenmerk auf die technischen Installationen wie Lüftung, Kühlung und elektrische Installationen gelegt. Das Labor darf keinen Temperaturanstieg von über 26° Celcius verzeichnen. Gleichzeitig muss eine durchdachte Anordnung der Arbeitsabläufe sowie auch Betretung der Räumlichkeiten berücksichtigt werden.

Innerhalb von knapp 3 Monaten wurden die Laborräumlichkeiten eingebaut und in Betrieb genommen.